Complesso del convento di S. Maria al Carrobiolo
SCROLL DOWN
Piazza Carrobiolo, 6 – Monza (MB)

Restauro e risanamento conservativo con rifunzionalizzazione e adeguamento d’uso con abbattimento barriere architettoniche.

Lorem ipsum

Lorem ipsum

Lorem ipsum

Lorem ipsum

Descrizione

Il complesso del Carrobiolo a Monza comprende la Chiesa di Santa Maria al Carrobiolo, il convento dei Barnabiti, la biblioteca e il Teatro Villoresi. Fondato nel XIII secolo dagli Umiliati, divenne sede dei Barnabiti nel 1571 a seguito della soppressione dell’ordine. Il complesso conserva elementi medievali come il campanile e i muri perimetrali, integrati da ampliamenti e decorazioni seicentesche e settecentesche. Ai margini della proprietà, verso Vicolo Carrobiolo e Vicolo Scuole, si trova un edificio a L adibito a varie attività sociali e ricreative.

2019/2024

Prestazioni svolte

Nel corso degli anni le attività di progettazione preliminare, definitiva, esecutiva, Direzione Lavori e coordinamento sicurezza, hanno riguardato i seguenti ambiti:

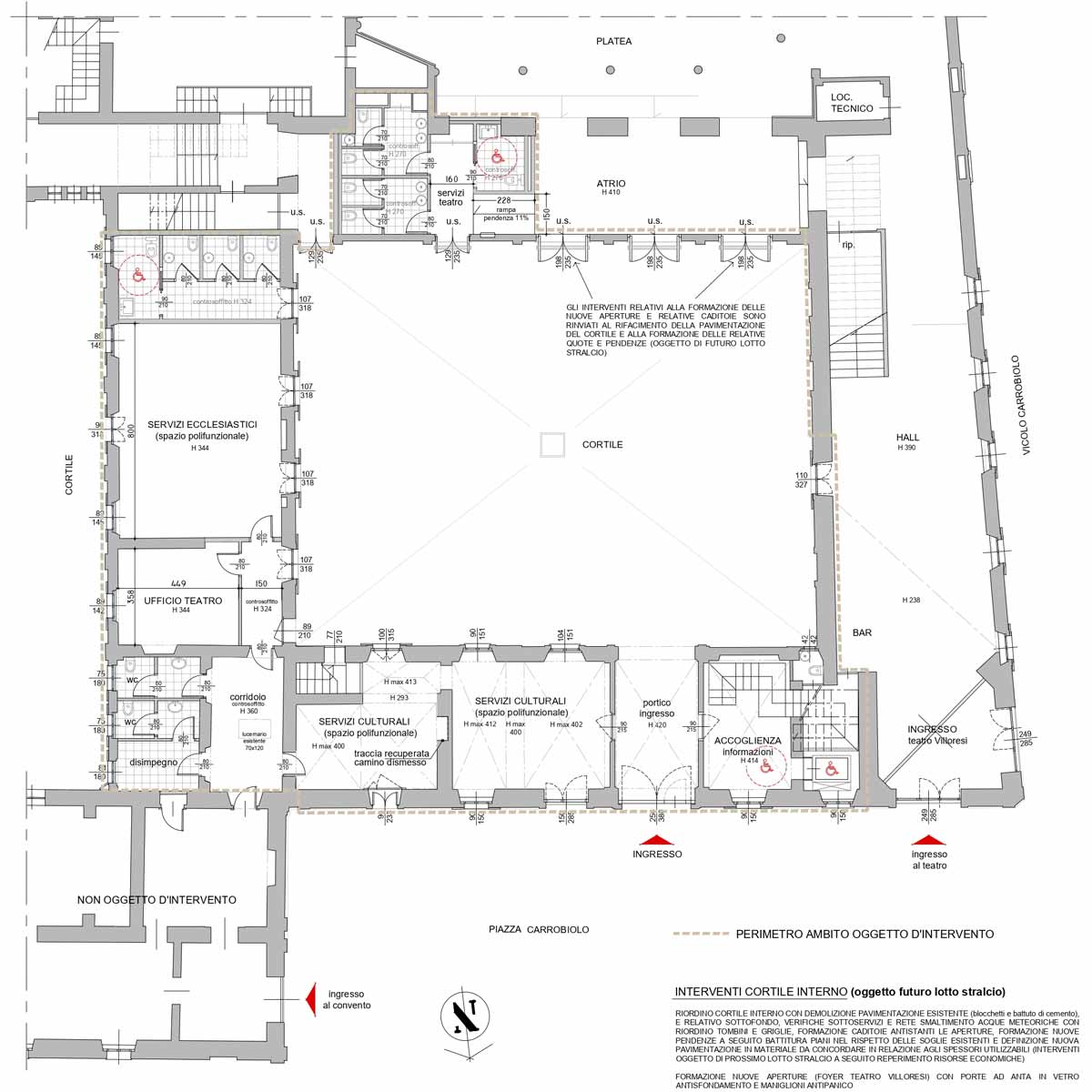
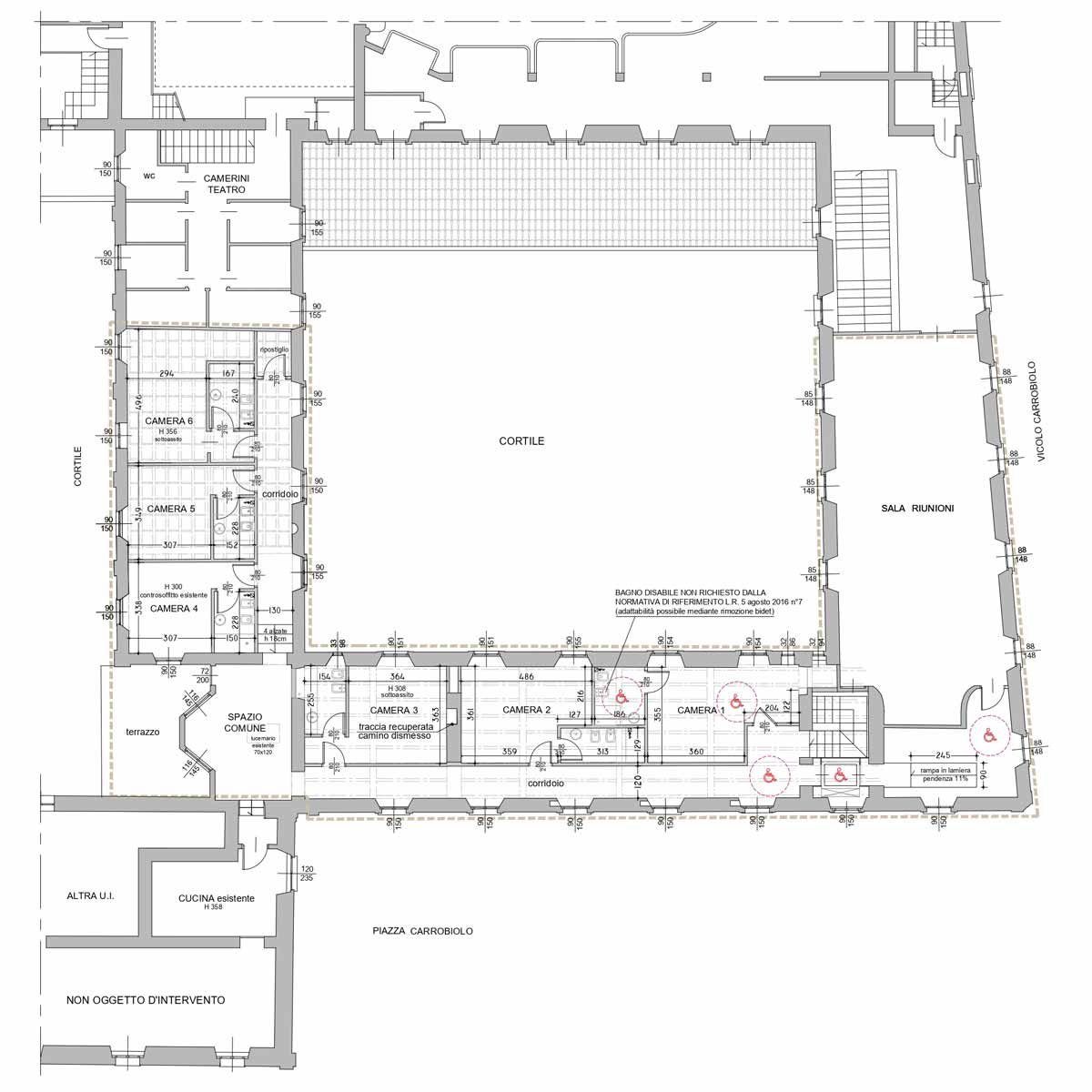
Edifici prospicienti Piazza Carrobiolo 6, cortile interno e teatro:

Il delicato progetto di riqualificazione, preceduto da un’attenta analisi dei componenti costituitivi mediante indagini stratigrafiche, è stato condotto nel rispetto delle caratteristiche storiche dell’edificio sottoposto a vincolo di tutela definite con la Soprintendenza, nella figura dell’Arch. Carlo Catacchio.

Gli interventi, oggetto di contributi da parte della CARIPLO e della Regione Lombardia, hanno interessato:

  • l’adeguamento dei servizi igienici con abbattimento barriere architettoniche del Teatro Villoresi e della sala riunioni presente al piano primo;
  • gli ambienti della corte interna al piano terra per servizi di tipo culturale e ecclesiastici (locale pluriuso per associazionismo, spazi espositivi, caffè letterario);
  • gli ambienti per ricettività non alberghiera (accoglienza ospiti piano primo) nella tipologia della “foresteria lombarda”
COMMITTENTE

Provincia Lombarda dei Chierici Regolari di S. Paolo detti Barnabiti, Milano

STATO DI FATTO